Legal Scandals  
  Table of Contents.

The Rinkeby Fire, Stockholm, 2009.


  
Hoda Sunyare, 42
years old.                Huda, 15 years old.                      Hanna, 7 years old.


    
    Hiba, 10 years old.                        Nagra, 8 months old.                             Najma, 11 years old.


The above persons were resident at Kuddbygränd 12, Rinkeby, Stockholm. Hoda Sunyare was the mother of the children Huda, Hanna, Hiba, Nagra and Najma. On the evening of 2009-07-25 around 10 pm, a fire started on the 2nd floor of their apartment building. Hoda Sunyare and her children lived on the 7th floor. They all died in the fire.


 
Kuddbygränd 12. The fire started at the yellow arrow. The picture to the right shows the window
opening to the room shortly after the fire started.


The first alarm to the Rescue Service was received at
10:15 pm. The first forces arrived at the scene at 10:25 pm. The apartment was then completely in flames. This apartment is hereinafter referred to as the fire apartment.



There is a so-called smoke hatch at the property's roof. It is located at the
black arrow. A high-altitude platform rescue truck brought up staff to the
roof level. It can be seen outside the entrance to level 1 (Plan 1).



The purpose of the smoke hatch is that fire smoke that collects in the stairwell can be ventilated away via the hatch. When the smoke divers came up to the fire apartment, the apartment door was wide open and flames broke out in the stairwell. A smoke diver searched for the smoke hatch
trigger device. He could not find it. After a while, other smoke divers were able to find it. The trigger device is connected to a wire that can open the smoke hatch (location on level 2 according to the sketch above). It then turned out that it was not possible to open the smoke hatch. The wire had got stuck in the pipe that it runs through up to the smoke hatch. The smoke in the stairwell made it impossible for the residents above floor 2 to get out. They were urged by the Rescue Service to stay in their apartments and keep windows and doors closed. The fire in the fire apartment was extinguished.



Hoda Sunyare
and her friend.


When the fire started, Hoda Sunyare was visiting her friend on Kuddbygränd 16. When she was told that there was a fire on Kuddbygränd 12, she rushed over to save her children.

The family who lived in the fire apartment had visits from relatives and friends. A total of 13 people were in the apartment when the fire broke out. It was quickly evacuated. No
one was injuried .



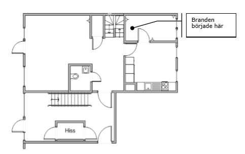
The fire apartment is located on two floors. The sketch shows
the part that is on floor 2. At the text  "Branden började här"
(The fire started here) is the window opening shown in the picture
 shortly after the fire started.



Around
11:16 pm, the high-altitude platform rescue truck had brought staff up to the roof level. They could then open the smoke hatch from there. When the fire was extinguished and the smoke dissipated, all residents could be evacuated. Rescue workers had found seven dead people in the stairwell, including Hoda Sunyare and her children. The cause of death was flue gas poisoning.

So far the official version of the fire in Rinkeby. I've reviewed the details of this CIA-led False Flag operation. It is an element of the war on semen.

The main
caracter responsible for the operation is the CIA agent Gina Haspel. Her assistant, FW, has been on site at Kuddbygränd 12. The operation was not very resource-intensive, even though the results had major consequences. I estimate that a maximum of about 10 people participated. The Rinkeby district has a high proportion of immigrants. This is the main reason why the operation was located there. Hoda Sunyare and her husband are of Somali descent. The CIA and the Swedish Nazis have always opposed immigration to Sweden - especially that from the Middle East. Earlier in the year, there had been unrest in Rinkeby. Car fires and stone-throwing against emergency vehicles (police, ambulance, etc.). In media, criminal immigrants were singled out for being behind it. I consider these incidents as cover-up operations staged by the CIA. The purpose was to allow the unrest to culminate in the terrorist attack on Kuddbygränd 12. My hypothesis is that Hoda Sunyare participated in Jehovah's semen business. The CIA has mapped her family with the help of the CIA-paid infiltrators and informants who are always on site in the immigrant-dense areas in Sweden. Once they discovered the extent of Hoda Sunyare's participation, the operation was determined.

The operation:
1) The main target of the operation were Hoda Sunyare's children. The elimination of the children must take place silently. Any screams could be perceived by nearby apartments. My assumption is that the CIA judged poisoning to be the perfect method. Someone who was well known to the children has poisoned them. The claim that Hoda Sunyare would have rushed over to Kuddbygränd 12 and taken up to
her apartment lacks credibility. The stairwell was quickly filled with smoke after
the explosion.

2) When Gina Haspel has been informed that the children have been eliminated, she orders FW to enter the property Kuddbygränd 12. She has been provided with keys to enter the fire apartment. There were no people in the fire apartment. FW places a firebomb in the room shown in the sketch "The fire started here". She then leaves the property. It is likely that she was picked up by a waiting car.

3) When Gina Haspel has been informed that the firebomb has been deployed and that FW is at a proper distance from Kuddbygränd 12, it is time to detonate the bomb. This is done with the help of a radio transmitter. It is probable that the person who detonates the bomb is in a place where he has an overview of the entrance to Kuddbygränd 12. When the coast is
clear, he detonates the bomb. Several witnesses have said they heard an explosion before the fire.

I have checked in Sveriges Dödbok
(= the official Swedish Death Registry)
to see who died at address Kuddbygränd 12 on 2009-07-25. I have found the following:

20020529-010
Yusuf, Hanna
Kuddbygränd 12 5 Tr
163 75 Spånga
Död 25/7 2009.
Folkbokförd i Spånga, Stockholms stad (Stockholms län, Uppland).
Född 29/5 2002 (ingen uppgift om födelseort)
Flicka under 18 år.
Anm
Motsvarande folkbokföringsförsamling(ar) 1/1 2017:
Spånga-Kista, Stockholms stad (Stockholms län, Uppland)
Källor:
FK 13

19990611-7743
Yusuf, Hiba
Kuddbygränd 12 5 Tr
163 75 Spånga
Död 25/7 2009.
Folkbokförd i Spånga, Stockholms stad (Stockholms län, Uppland).
Född 11/6 1999 (ingen uppgift om födelseort)
Flicka under 18 år.
Anm
Fastighet: Enfotakvarnen 1
Motsvarande folkbokföringsförsamling(ar) 1/1 2017:
Spånga-Kista, Stockholms stad (Stockholms län, Uppland)
Källor:
FK 13

20081105-3628
Yusuf, Nagra
Kuddbygränd 12 5 Tr
163 75 Spånga
Död 25/7 2009.
Folkbokförd i Spånga, Stockholms stad (Stockholms län, Uppland).
Född 5/11 2008 (ingen uppgift om födelseort)
Flicka under 18 år.
Anm:
Fastighet: Enfotakvarnen
Motsvarande folkbokföringsförsamling(ar) 1/1 2017:
Spånga-Kista, Stockholms stad (Stockholms län, Uppland)
Källor:
FK 13

19970731-2360
Ali Nour, Najma
Kuddbygränd 12 5 Tr
163 75 Spånga
Död 25/7 2009.
Folkbokförd i Spånga, Stockholms stad (Stockholms län, Uppland).
Född 31/7 1997 i Brännkyrka (Stockholms stad, Södermanland).
Flicka under 18 år.
Anm:
Fastighet: Enfotakvarnen
Motsvarande folkbokföringsförsamling(ar) 1/1 2017:
Spånga-Kista, Stockholms stad (Stockholms län, Uppland)
Födelseförsamling i källan:
Brännkyrka (Stockholms län)
Källor:
FK 13 / Spar97bilaga


A prerequisite for being registered in
Sveriges Dödbok is that you are registered in the Swedish Population Registry at the time of your death. The media has reported that 13-year-old Naimay Ahmed died in the fire. She had arrived in Sweden in 2009 and in that case could not yet have been registered in the Population Registry. I have not found any evidence that Naimay Ahmed existed.

It has been alleged in media that Hoda Sunyare left the apartment with her five children when the fire broke out. This statement lacks credibility. The course of the fire was explosive. It is likely that FW left the door to the fire apartment ajar. The pressure wave
from the explosion has then left it wide open. The fire smoke was given free rein. There was no possibility for Hoda Sunyare to enter her apartment.


Gina Haspel and FW have found each other in their passion for racism. They're two crazy psychopaths.

YouTube video:
Ava Max - Sweet But Psycho

The
Swedish Accident Investigation Board has submitted a report on the fire. The report is a forgery but still contains a lot of useful facts. Here you can download the report:

Statens haverikommission: RapportRO2010-01.pdf
    (all in Swedish)